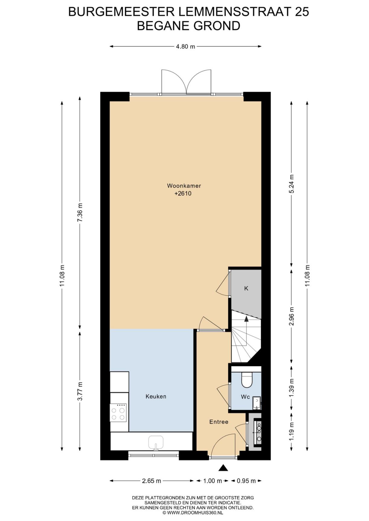
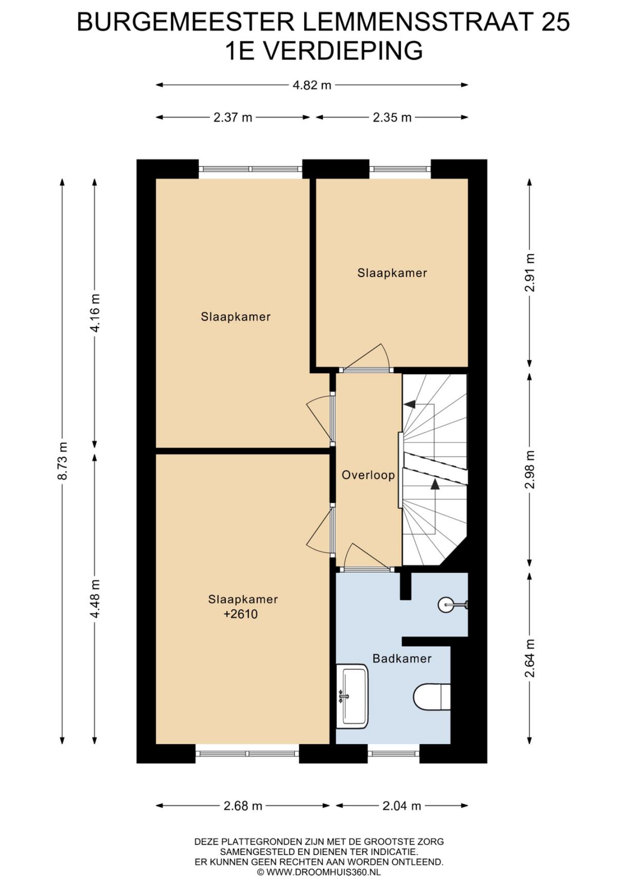
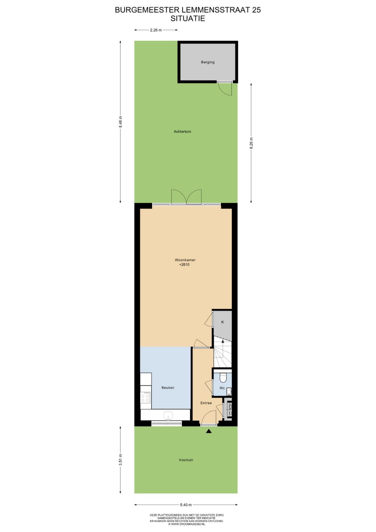
Burgemeester Lemmensstraat 25
1695CT Blokker
Veemarkt 32
1621 KB Hoorn
www.boekweitolie.nl/ info@boekweitolie.nl