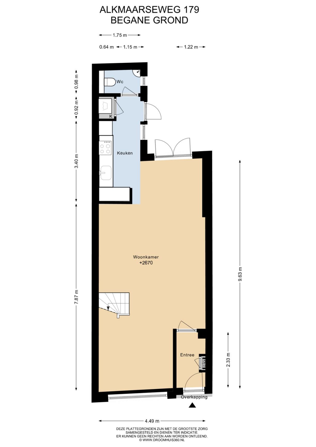
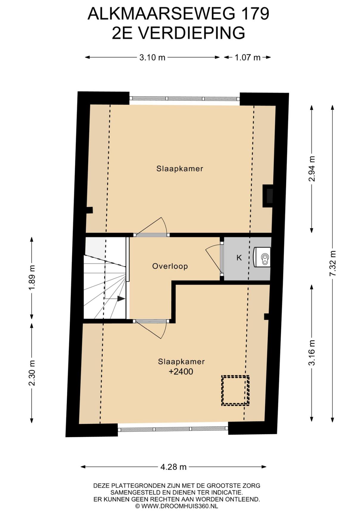
Alkmaarseweg 179
1945 DE Beverwijk
J. Duikerweg 9 a
1703DH Heerhugowaard
www.lucamakelaardij.nl/ info@lucamakelaardij.nl