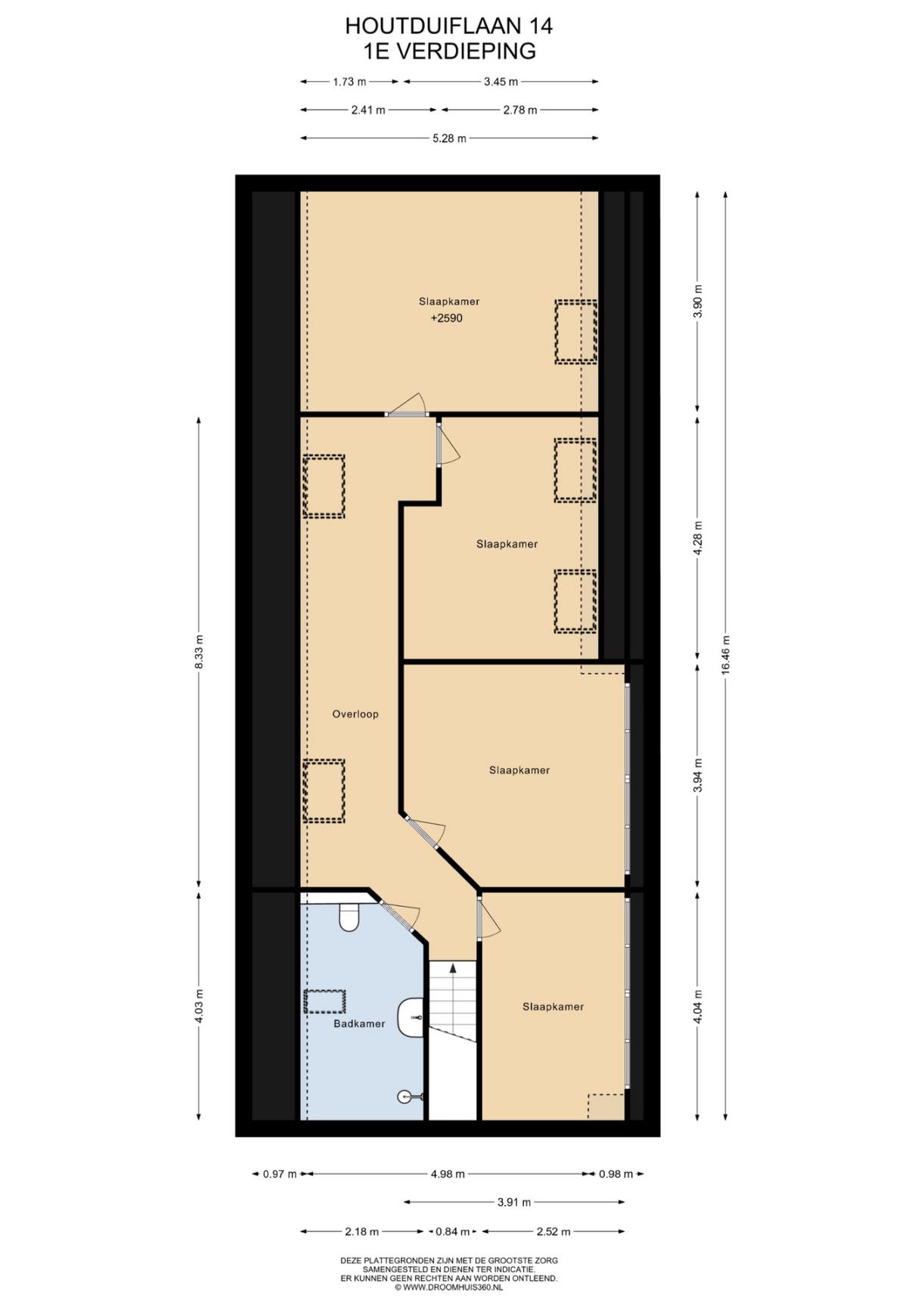
Houtduiflaan 14
6446 DH Brunssum
Doctor Poelsstraat 34
6411 HH Heerlen
www.spauwen-werrij.nl mw@spauwen-werrij.nl