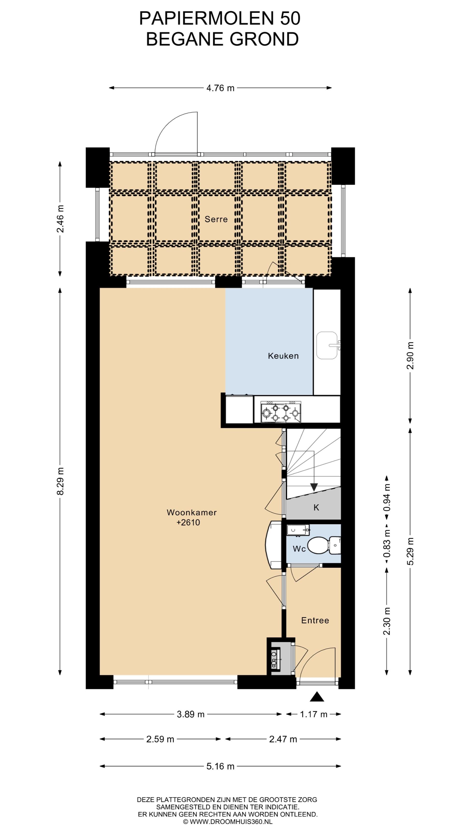
Papiermolen 50
1622KW Hoorn
Boekweit Olie Makelaars Taxateurs
Veemarkt 32
1621 KB Hoorn
Social share
www.boekweitolie.nl/
info@boekweitolie.nl
0229244234