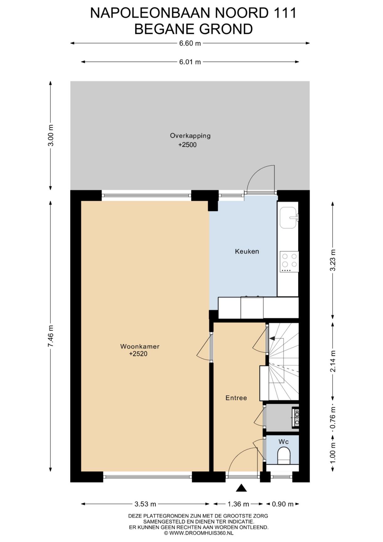
Napoleonbaan noord 111
6163 VM Geleen
Steinderweg 49
6171 XJ Stein
www.ankesmeets.nl info@ankesmeets.nl